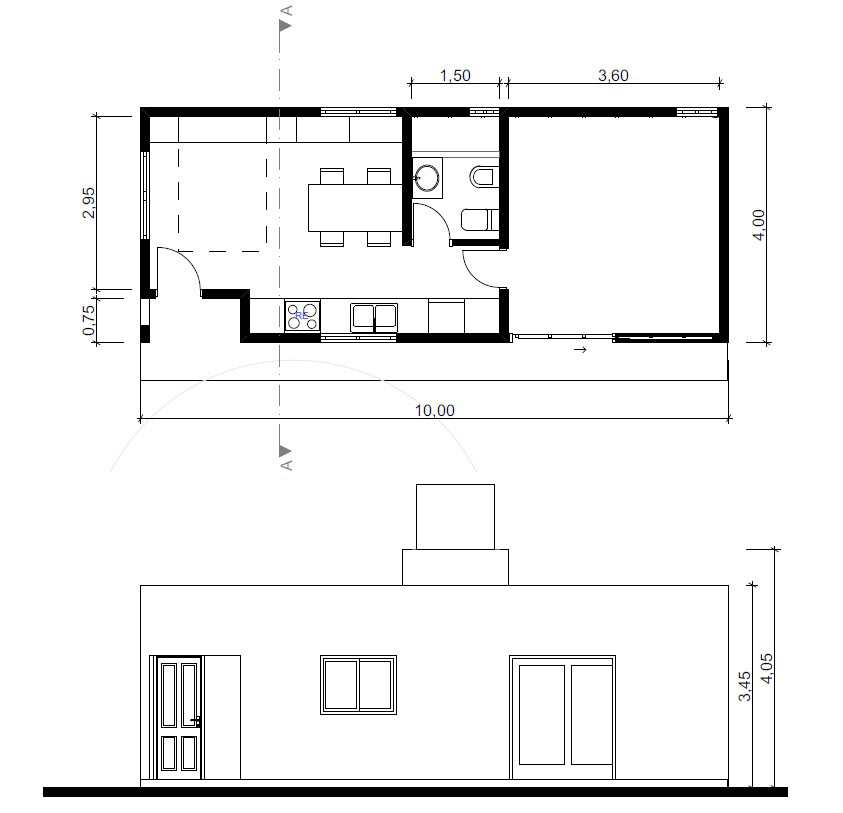
CASA PURA
Proyecto en el barrio El Remanso, Exaltación de la Cruz, Prov. de Bs. As. El cliente necesitaba armar la casa de huéspedes, la cuál iba a funcionar de su propio hogar mientras realizaba su casa. El diseño contempla un espacio que tenga todo integrado con un mueble con cama rebatible y un espacio que funcione como workshop.